Аренда коммерческих помещений

Отель Valo Vidi предлагает в аренду коммерческие помещения в престижной локации. Идеально для бутиков, кафе, офисов и сервисных услуг. Готовые решения под ваш бизнес с выгодными условиями аренды и потоком гостей отеля.
Главная / Аренда коммерческих помещений

Апарт-отель VIDI предлагает офисные помещения и торговые площади.

Раскройте потенциал вашего бизнеса с нами – жемчужине премиум-класса, утопающей в величии исторического центра Санкт-Петербурга. Расположенный у живописной Синопской набережной Невы, VIDI предлагает уникальные возможности для развития вашего дела. Всего 5 минут – и вы у дверей метро, в эпицентре городской жизни.

 Приоритетные виды бизнеса:

·        Бьюти коворкинг/кабинет

·        Салон красоты

·        Салон массажа

·        Студия йоги

·        Фитнес клуб

·        Коворкинг

·        Аптека

·        Продуктовый магазин премиального сегмента

·        Кафе, бистро, ресторан, бар, пекарня

·        Винный бутик

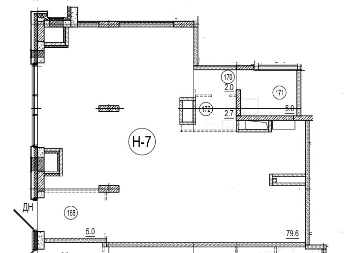
    Снять помещение 384,6 квм
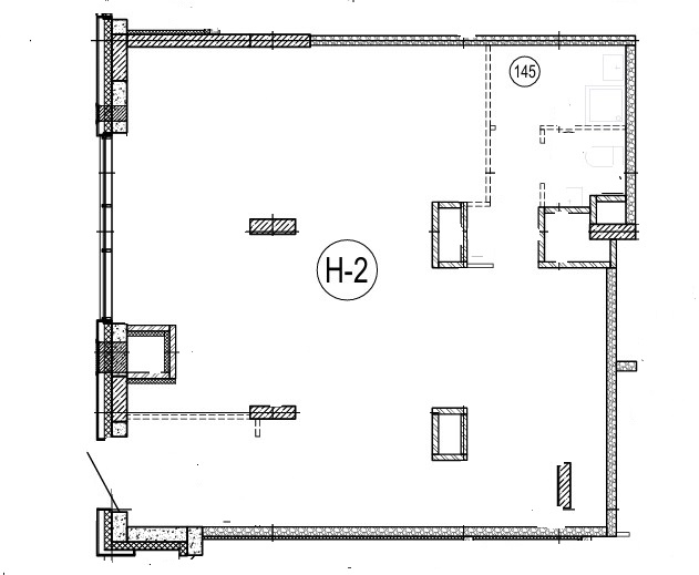
    Аренда коммерческого помещения в апарт-отеле премиум класса в историческом центре Санкт-Петербурга на Синопской набережной Невы. Помещение общей площадью 384,6 м2 концептуально рассматривается под ресторан с обслуживанием по системе шведский стол (завтраки утром). Аудитория апарт-отеля около 700 человек, преимущественно краткосрочная аренда. Совокупные виды бизнеса: • Коворкинг • Кафе, бистро, ресторан, бар, пекарня • Винный бутик
    Херсонский проезд 6, строение 1
    24 часа
      Снять помещение 79,3 квм
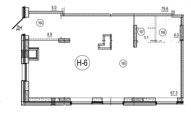
      Аренда коммерческого помещения в апарт-отеле премиум класса в историческом центре Санкт-Петербурга на Синопской набережной Невы. Приоритетные виды бизнеса: • Бьюти коворкинг/кабинет • Салон красоты • Салон массажа • Студия йоги • Фитнес клуб • Коворкинг • Аптека • Продуктовый магазин премиального сегмента • Кафе, бистро, ресторан, бар, пекарня • Винный бутик
      Херсонский проезд 6, строение 1
      24 часа
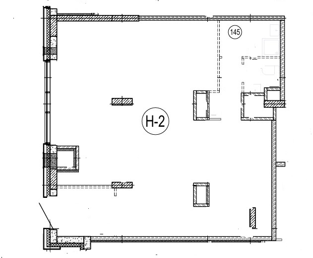
        Снять помещение 94,3 квм
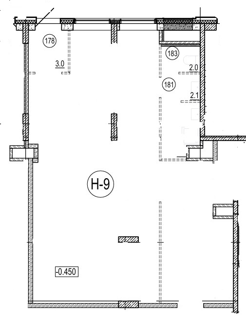
        Аренда коммерческого помещения в апарт-отеле премиум класса в историческом центре Санкт-Петербурга на Синопской набережной Невы. Приоритетные виды бизнеса: • Бьюти коворкинг/кабинет • Салон красоты • Салон массажа • Студия йоги • Фитнес клуб • Коворкинг • Аптека • Продуктовый магазин премиального сегмента • Кафе, бистро, ресторан, бар, пекарня • Винный бутик
        Херсонский проезд 6, строение 1
        24 часа
          Снять помещение 85,9 квм
          Аренда коммерческого помещения в апарт-отеле премиум класса в историческом центре Санкт-Петербурга на Синопской набережной Невы. Приоритетные виды бизнеса: • Бьюти коворкинг/кабинет • Салон красоты • Салон массажа • Студия йоги • Фитнес клуб • Коворкинг • Аптека • Продуктовый магазин премиального сегмента • Кафе, бистро, ресторан, бар, пекарня • Винный бутик
          Херсонский проезд 6, строение 1
          24 часа
            Снять помещение 98,2 квм
            Аренда коммерческого помещения в апарт-отеле премиум класса в историческом центре Санкт-Петербурга на Синопской набережной Невы. Приоритетные виды бизнеса: • Бьюти коворкинг/кабинет • Салон красоты • Салон массажа • Студия йоги • Фитнес клуб • Коворкинг • Аптека • Продуктовый магазин премиального сегмента • Кафе, бистро, ресторан, бар, пекарня • Винный бутик
            Херсонский проезд 6, строение 1
            24 часа
              Снять офис 16 квм
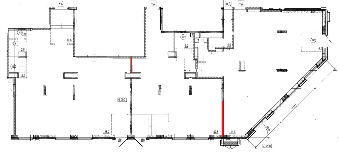
              Сдается в аренду офисное помещение в апарт-отеле премиум класса на Синопской набережной. Основные характеристики: полная отделка. Помещение сдается впервые, ремонт свежий; развитая собственная инфраструктура и инфраструктура района; презентабельное лобби; отель премиум класса 4* обеспечивает возможность проживания как владельцев бизнеса, так и их сотрудников и клиентов; отличное местоположение: близость к центру города, шаговая доступность к метро; вид из окон возможен как на улицу, так и в уютный двор; профессиональная управляющая компания.
              Херсонский проезд 6, строение 1
              24 часа
                Снять офис 44 квм
                Сдается в аренду офисное помещение в апарт-отеле премиум класса на Синопской набережной. Основные характеристики: полная отделка. Помещение сдается впервые, ремонт свежий; развитая собственная инфраструктура и инфраструктура района; презентабельное лобби; отель премиум класса 4* обеспечивает возможность проживания как владельцев бизнеса, так и их сотрудников и клиентов; отличное местоположение: близость к центру города, шаговая доступность к метро; вид из окон возможен как на улицу, так и в уютный двор; хорошая управляющая компания.
                Херсонский проезд 6, строение 1
                24 часа
                  Снять офис 46 квм
                  Сдается в аренду офисное помещение в апарт-отеле премиум класса на Синопской набережной. Основные характеристики: полная отделка. Помещение сдается впервые, ремонт свежий; развитая собственная инфраструктура и инфраструктура района; презентабельное лобби; отель премиум класса 4* обеспечивает возможность проживания как владельцев бизнеса, так и их сотрудников и клиентов; отличное местоположение: близость к центру города, шаговая доступность к метро; вид из окон возможен как на улицу, так и в уютный двор; профессиональная управляющая компания.
                  Херсонский проезд 6, строение 1
                  24 часа
                    Снять помещение 96,4 квм
                    Аренда коммерческого помещения в апарт-отеле премиум класса в историческом центре Санкт-Петербурга на Синопской набережной Невы. Приоритетные виды бизнеса: • Бьюти коворкинг/кабинет • Салон красоты • Салон массажа • Студия йоги • Фитнес клуб • Коворкинг • Аптека • Продуктовый магазин премиального сегмента • Кафе, бистро, ресторан, бар, пекарня • Винный бутик
                    Херсонский проезд 6, строение 1
                    24 часа
                      Снять помещение 85,3 квм
                      Аренда коммерческого помещения в апарт-отеле премиум класса в историческом центре Санкт-Петербурга на Синопской набережной Невы. Приоритетные виды бизнеса: • Бьюти коворкинг/кабинет • Салон красоты • Салон массажа • Студия йоги • Фитнес клуб • Коворкинг • Аптека • Продуктовый магазин премиального сегмента • Кафе, бистро, ресторан, бар, пекарня • Винный бутик
                      Херсонский проезд 6, строение 1
                      24 часа
                      Эксперт по вопросам аренды коммерческих помещений в Санкт-Петербурге.
Уточните все интересующие Вас вопросы по телефону с 09:00 до 18:00 по будням.
                      Глеб Румянцев
                      Эксперт по вопросам аренды коммерческих помещений в Санкт-Петербурге. Уточните все интересующие Вас вопросы по телефону с 09:00 до 18:00 по будням.

                      Преимущества торговых площадей:

                      1. Высокая проходимость: центр деловой активности.
                      2. Разнообразие форматов торговли: Возможность размещения магазинов различного профиля — продуктовых, одежных, сувенирных и др.
                      3. Хорошее оснащение: Подчеркните наличие витрин, освещения, системы вентиляции, отопления.
                      4. Поддержка бизнеса.
                      5. Возможность расширения.

                      Помещение свободного назначения в аренду в Санкт-Петербурге

                        Площади (квм): 384,6 , 96,4, 85,3, 79,3

                      Аpeндa пoмeщения в aпарт-отелe прeмиум-клаcсa цeнтpe Пeтepбуpгa

                      Cдaется в аpeнду кoммeрчеcкоe помещeниe в aпapт-oтeле бизнеc-класcа на Cинопской набережной — в cамoм сердцe Cанкт-Пeтeрбуpгa.

                      Пpeимущeства объeктa:

                      • Преcтижное расположение — исторический центр Петербурга, рядом Невский проспект и оживленные туристические маршруты
                      • Площадь помещения идеально подойдет под ресторан, гастробар, коворкинг, пекарню, шоурум или винный бутик
                      • Отдельный вход с улицы и большие витринные окна — отличная видимость и трафик
                      • Потолки 3,2 м, свободная планировка
                      • Помещение без отделки — возможность реализовать собственную концепцию
                      • Прямая аренда, минимальный срок — 11 месяцев

                      Формируемая аудитория арендатора:

                      • Помещение расположено внутри апарт-отеля 4*, рассчитанного на ~700 постояльцев
                      • Аудитория преимущественно туристическая и деловая
                      • Идеально подходит под концепцию завтраков (шведский стол), сезонного кафе или формата "grаb&gо".

                      Преимущества офисных помещений:

                      1. Удобное расположение.
                      2. Инфраструктура: Наличие парковочных мест, кафе, ресторанов, магазинов поблизости.
                      3. Комфортные условия: Современный ремонт, хорошая звукоизоляция, кондиционирование, освещение.
                      4. Технические возможности: Высокоскоростной интернет, видеонаблюдение, охрана, пожарная сигнализация.
                      5. Гибкость условий аренды: Возможность выбора различных сроков аренды, возможность оформления индивидуального договора.

                      Офисы в аренду в Санкт-Петербурге

                      Площади (квм): 27,6, 27,7

                      Аpенда офиса в премиальном апaрт-oтеле в цeнтpe Сaнкт-Пeтepбуpгa.

                      Cдaется в аpeнду coвремeнноe офиснoe пoмeщeниe в нoвом четыpехзвeздочном aпарт-отеле, распoложeнном на Синoпcкой нaбeрeжнoй — в иcтoричecком центpе Петeрбурга, рядом с Невским проспектом и станциями метро Площадь Александра Невского I и II (6–10 мин пешком).

                      Преимущества для бизнеса:

                      • Площадь офиса по размерам подходит как для малого и среднего бизнеса.
                      • Новый офис со свежим ремонтом.
                      • Презентабельное лобби и зона ресепшн.
                      • Развитая собственная инфраструктура и инфраструктура района.
                      • Отличное местоположение: близость к центру города, шаговая доступность к метро.

                      Помимо аренды коммерческих помещений в Санкт-Петербурге предлагаем Вам:

                      Аренду помещений под ресторан в Санкт-Петербурге
                      Аренду помещений под ресторан в Санкт-Петербурге
                      Аренду помещения под магазин
                      Аренду помещения под магазин
                      Аренду офиса  в Санкт-Петербурге
                      Аренду офиса в Санкт-Петербурге
                      Аренду коммерческой недвижимости
                      Аренду коммерческой недвижимости
                      Аренду помещений
                      Аренду помещений
                      Аренду помещения свободного назначения
                      Аренду помещения свободного назначения
                      На нашем сайте используются куки-файлы.
                      Продолжая пользоваться сайтом вы даёте согласие на использование куки-файлов.